Web Analytics
19+ Sample Residential Appraisal Report Images

19+ Sample Residential Appraisal Report Images

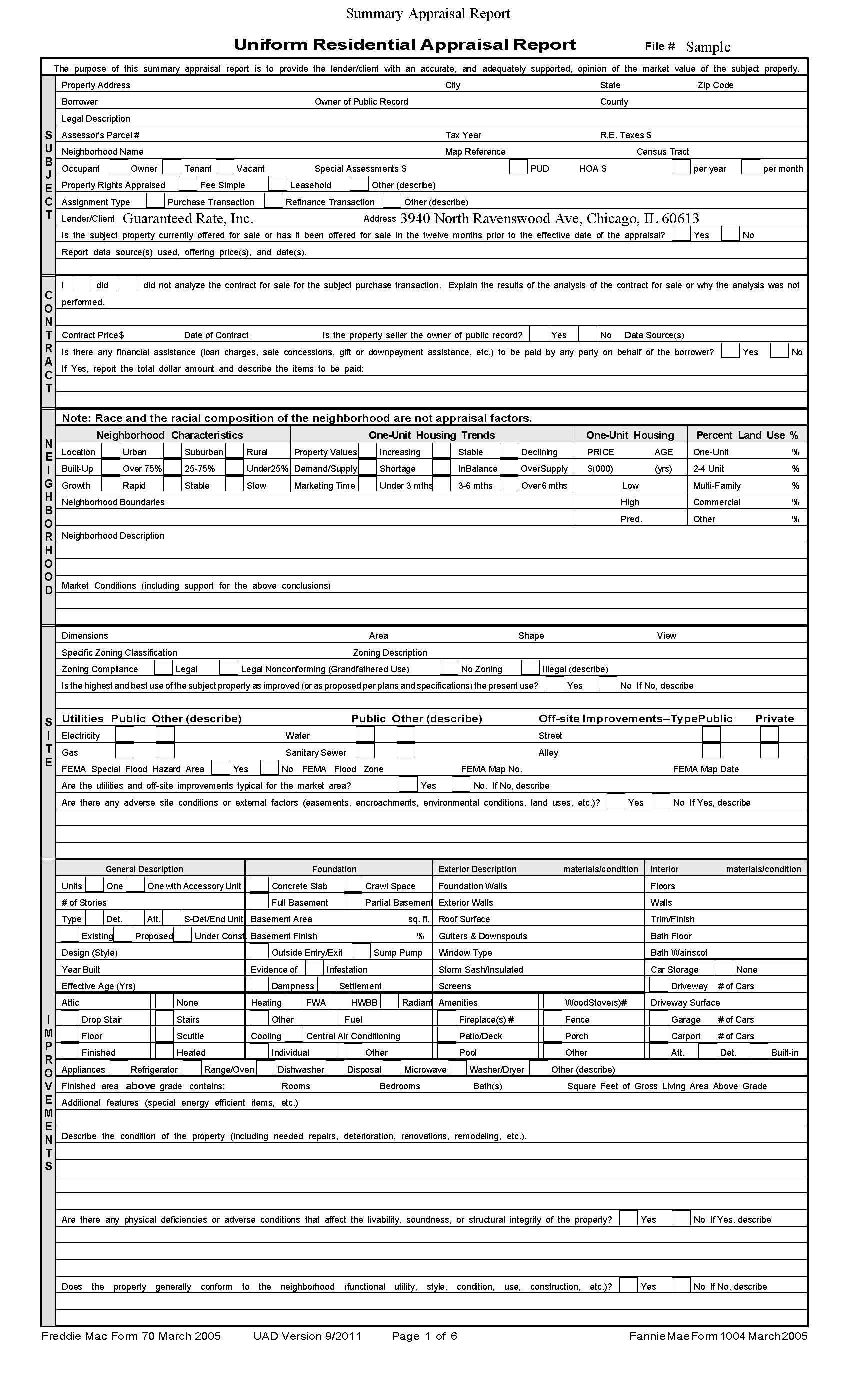
Located at the purpose of this summary appraisal report is to provide the lender/client with an accurate, and adequately supported, opinion of the market value of the subject property.

19+ Sample Residential Appraisal Report Images. Residential appraisal forms are the most commonly used kind of appraisal sheet in the real estate field. Reading a residential appraisal report means breaking it down into sections to understand how the appraiser arrived at his conclusion of value.

Appraiser Resume Samples Qwikresume
Appraiser Resume Samples Qwikresume from assets.qwikresume.com
It can contain a moderate or extensive amount of information, depending on the assignment parameters and type of property being appraised. ยท cuspap details three types of appraisal reports: Compared to a restricted appraisal report that has very limited information.

Narrative report judgement data, often used by appraisers is that sample data selected, based on personal.

The appraisal is made based on the extra ordinary assumption that. This video explains an appraisal report, so you can better understand where the important parts of it are. Residential appraisal forms are the most commonly used kind of appraisal sheet in the real estate field. Appraised by valuing numerous construction components.